Для начала разберёмся, что такое пассивый дом. Это определение дают домам, нагрузка на отопление которых составляет до 15 кВт*ч/м²*год благодаря пассивным методам энергосбережения. К таким относится, к примеру, использование теплоизоляции и рекуперации.
Один из решающих компонентов пассивного дома – механическая система вентиляции с КПД 75% и более и с показателем потребления электрической энергии на вентиляцию 0,45 Вт/час на 1 м³ воздуха.
Зачем нужна механическая вентиляция в пассивном доме?
По стандартам пассивного дома следует делать замкнутую герметичную утеплённую оболочку постройки, которая приводит к минимальным тепловым потерям. Как только мы влияем на них, делая дом максимально воздухонепроницаемым и герметичным, мы ограничиваем попадание воздуха в здание. Для того, чтобы обеспечить его поступление, нужна вентмашина с рекуператором. Рекуператор — это теплообменник, в котором вытяжной воздух отдаёт своё тепло приточному уличному через специальный материал без смешения потоков.
При подборе отопительного оборудования составляют так называемый энергетический баланс: соотношение тепловых потерь и теплопоступлений. Теплопоступления дают люди, солнце, свет, определённые приборы и отопление. Теплопотери — это трансмиссионные теплопотери (тепловые потери через стены, пол, кровлю, окна), вентиляционные теплопотери. TURKOV как производитель вентиляционного оборудования влияет именно на последние.

Как уменьшить вентиляционные теплопотери?
При расчёте теплопотерь от вентиляции уже учитываются фактический КПД рекуператора, кратность воздухообмена и кратность инфильтрационного воздуха, который поступает через неплотности дома (щели, дыры и пр.).
На вентиляционные теплопотери можно влиять 2 способами.
1 способ: строительный
Способ состоит в создании замкнутой герметичной оболочки здания, проведении определённых тестов.

Здесь действует правило карандаша: если сделать разрез дома и провести линию, она должна нигде не прерываться. Нужно получить полностью замкнутую оболочку: это проверяется с помощью специальных приборов, аэродверей. При разности давления между домом и улицей 50 Па кратность воздухообмена через неплотности по стандарту пассивного дома должна составлять до 0,6 раз в час.


Суть методики в следующем: специальное воздухонепроницаемое полотно вставляется в дверной проём. В нём установлен специальный вентилятор, который создаёт перепад давления и измеряет автоматический расход воздуха, поступающий в дом через неплотности.
Аэродверь используется для проверки дома на герметичность. В случае обнаружения повышенной кратности инфильтрации стоит найти её источники и устранить их строительными способами.

2 способ: вентиляционное оборудование с рекуперацией тепла
TURKOV производит рекуператоры с КПД 65-89%. В оборудовании используются пластинчатые рекуператоры, которые передают не только тепло от вытяжного воздуха приточному, но и влагу за счёт диффузии водяных паров. Другим преимуществом такого материала рекуператора является возможность его монтажа в любом положении.


У TURKOV можно найти серию вентустановок с двух-, трёх- и четырёхступенчатыми рекуператорами. Названия моделей отличаются в зависимости от количества ступеней в рекуператоре, которое в свою очередь влияет на КПД. В серии представлены Zenit Standart с 2 ступенями рекуперации и 65% КПД, Zenit Heco с 3 ступенями рекуперации и 78% КПД и Criovent с 4 ступенями рекуперации и 89% КПД.
Где размещать вентоборудование?
Мы рекомендуем размещать вентустановку внутри тепловой оболочки: это именно те условия, которые позволят оборудованию достичь указанного КПД. При монтаже установки на улице или на холодном чердаке КПД будет снижаться. Теплоизоляция помогает решить вопрос, но только частично: учитывайте это, когда будете определять место для вентоборудования.

Какой должна быть теплоизоляция?
Рекомендуемые нормы для теплоизоляции в климате Москвы составляют 18-20 мм на забор воздуха с улицы и выброс на улицу. Для пассивного дома стандарты выше: минимум 50 мм, в некоторых случаях — 100 мм.

Кейс: как устроен энергоэффективный дом?
Энергоэффективный дом — дом, в котором малое потребление энергии сочетается с комфортным микроклиматом.
Регион: Московская область
Этажи: 2 этажа с цокольным подвальным помещением
Вентоборудование: Zenit Heco 550 W
Технология строительства: каменный дом с утеплением минеральной ватой. Удельная нагрузка на отопление 37 кВт*час / м²*год.

Инженерная система дома включает следующие элементы:
- геотермальный тепловой насос, подключенный к системе тёплый пол и к нагревателю в приточно-вытяжной установке;
- солнечные коллекторы, выполняющие функцию нагрева горячего водоснабжения, а также прогрева грунта через геотермальные скважины*;
- системы потолочного охлаждения-отопления;
- электромобиль для аккумулирования солнечной энергии.
* Геотермальные скважины — это система хранения солнечной энергии в грунте. Тепло передаётся от недр к нужному объекту.
Летом за счёт того, что в этом объекте установлен геотермальный тепловой насос, геотермальные скважины используются как для охлаждения вентиляционного воздуха (к водяному теплообменнику установки подаётся холодная вода), так и для охлаждения через систему холодных потолков.

Почему на этом объекте использован именно энтальпийный рекуператор?
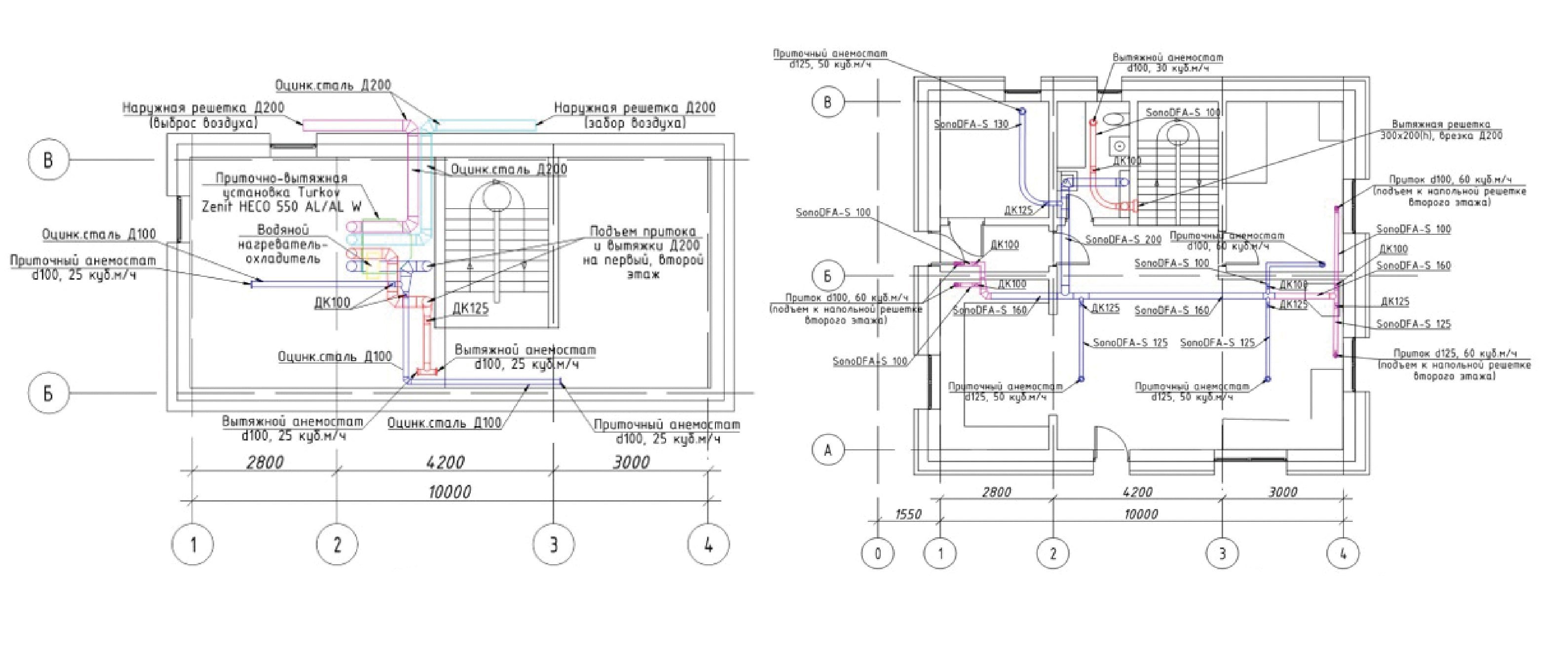
Для начала рассмотрим схему вентиляции.
Оборудование установлено в подвале. Вся разводка выполнена на 1 этаже для того, чтобы не затрагивать скатную кровлю на 2 этаже.
На 2 этаж воздуховоды заходят через пол. Использованы специальные напольные решетки, по которым можно ходить. Притоки организованы в гостиную, в спальню и кабинеты, а вытяжки — из санузлов, туалета и коридоров.
На весь дом имеется 2-3 вытяжные решётки. Такое решение допустимо в случаях, когда вентиляция работает через переток в межкомнатных дверях. Для обеспечения перетока необходима щель в дверном проёме 1-3 см.

Линии на второй иллюстрации отвечают за изменение влажности в доме с 2017 по 2022 год. Зелёная линия отвечает за время, когда дом был только сдан. В декабре и феврале можно видеть, что показатели были очень высоки, от 50 до 80%. Это объясняется остаточной влажностью от газобетона.
Когда заработала вентиляционная установка (все линии ниже), влажность стала падать, но не ниже критичного уровня. Критичным уровнем влажности можно было бы назвать 10%. Влажность в период с декабря по февраль составляла не ниже 30-35%. Указанный уровень достигнут без использования дополнительных систем увлажнения.
Однако отметим, что обращаться к приточно-вытяжному оборудованию для осушения воздуха в помещении недопустимо, поскольку детали установки не предназначены для этой цели.
Такой показатель получить достичь при сочетании 2 факторов:
- Энтальпийный рекуператор в вентустановке;
- Энергоэффективный дом с практически полным отсутствием инфильтрационных поступлений воздуха.
Как увеличить эффективность рекуператора?
Для увеличения эффективности рекуператора можно использовать так называемые геоконтура. Есть 2 варианта:

- Воздушный геотермальный контур
Воздух в этом случае проходит через землю перед попаданием в вентмашину.

2. Гликолевый геотермальный контур
Гликоль прокачивается через специальный теплообменник и забирает тепло также от земли.
Если вы хотите подобрать вентиляцию для своего пассивного дома, вы всегда можете обратиться к инженерам компании TURKOV за помощью. Наши специалисты подберут лучшее решение, которое будет учитывать особенности вашего объекта и ваши пожелания. Телефон для консультации указан в шапке сайта.