vk
Канал TURKOV в Телеграм Группа TURKOV В Контакте Канал TURKOV на Youtube Блог TURKOV на vc.ru Группа TURKOV на Одноклассниках Блог TURKOV на Дзене
Позвонить
Заказать звонок

Компактные приточные установки с водяным нагревателем CAPSULE W

Данные системы вентиляции охватывают бытовой сегмент и имеют производительность от 620 до 1600 м³/ч.

Помимо частных домов, установки Capsule W также актуальны для кафе, ресторанов, магазинов, офисов и отелей — площадью до 530 м².

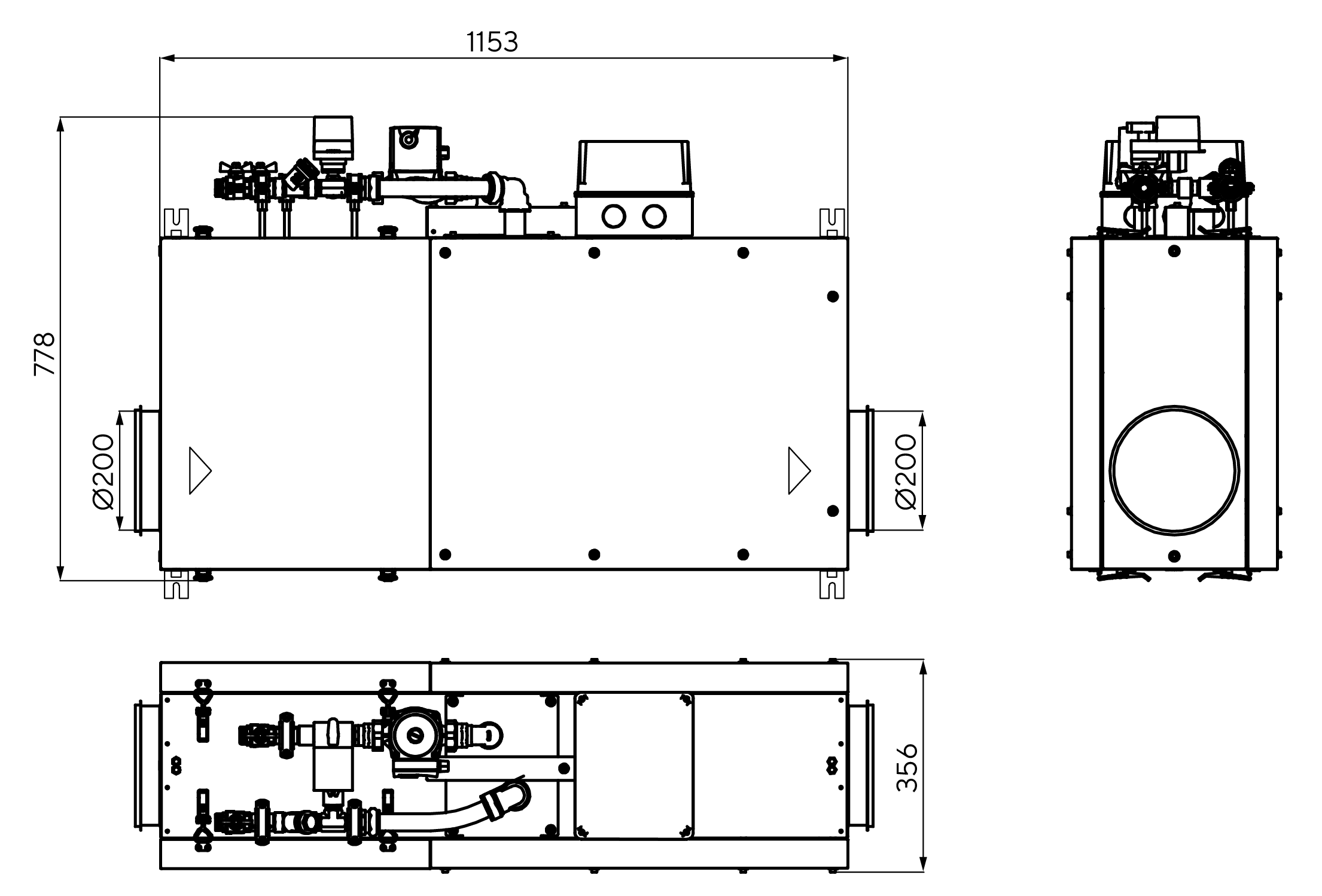
Габаритные размеры Capsule 620 W2R, мм
Габаритные размеры Capsule 620 W2R, мм

Водяные нагреватели — устоявшееся название для нагревателей, работающих с жидкостями. Тепло поступает от жидкости на пластины, которые и обеспечивают нагрев воздушного потока.

Главными преимуществами жидкостных нагревателей являются их способность справляться с высокими нагрузками на нагрев воздуха, а также экономичность. В случае, если к объекту вентиляции уже подведён магистральный газ, это позволит существенно экономить на нагреве.

Особенности установок линейки Capsule W:

  • Нагреватель. Встроенный, выполнен из меди и алюминия. Имеет систему защиты от обмерзания.
  • Смесительный узел. Опрессован, отрегулирован и подключен к автоматике.
  • Автоматика. Даёт сигнал, если в оборудовании возникают неполадки, а управление всеми ключевыми узлами осуществляет контроллер с помощью датчиков.
  • Корпус. Стальной с порошковой окраской. Теплошумоизоляция толщиной 50 мм.
  • Фильтры. В оборудовании применяются карманные воздушные фильтры с большой ёмкостью. Штатный класс — F5, но опционально можно заменить его на F7 или F9, а также добавить G4 для обеспечения двойной фильтрации.
  • Вентиляторы. Электронно-коммутируемые вентиляторы, регулируемые в диапазоне от 30% до 100% с точностью до 1%.
  • Клапан. Установка снабжена герметичным воздушным клапаном с электроприводом. Привод к заслонке оснащён возвратной пружиной, что позволяет закрыть клапан даже при отключении электричества.
  • Лопатка воздушной заслонки. Оснащена резиновым уплотнителем по всей длине, поэтому плотно прилегает к корпусу при закрытии, не давая холодному воздуху проникнуть в помещение.
Внутреннее
устройство Capsule 620 W2R
Внутреннее устройство Capsule 620 W2R

Приятные бонусы:

  • Систему можно запрограммировать на всю неделю, причём индивидуально для каждого дня. Эта опция позволяет создать график работы оборудования, исходя из потребностей жильцов.
  • Настенный пульт управления с сенсорным дисплеем отображает состояние фильтров, а также время, уличную температуру и многое другое.
  • Для максимального удобства предусмотрено управление через мобильное приложение по Wi-Fi, а также подключение к Яндекс станции с Алисой.
Оставаясь на сайте, вы соглашаетесь с условиями использования файлов cookie
Хорошо